高州市中山路112号商场招租项目招租公告
高州市中山路112号商场招租项目招租公告
茂名市汇智招标代理有限公司受高州市商业储运公司的委托,对高州市中山路112号商场招租项目(项目编号:MMHZ-25GB-018)进行公开招租,欢迎竞租人参与竞租。
一、招租租赁范围
招租租赁范围:高州市中山路112号商场招租项目,竞租人可就商场进行竞租。
二、租期及竞租报价底价
1、租赁期限:5年。从签订租赁合同开始计起,前期设15天装修期,装修期在租赁期内,免租金。
2、招租方式:
|
招租方式的确定 |
具体时间安排 |
暂定日期 |
||
|
方式一 |
公告期满,如征集到不少于2个(含2个)符合条件的意向方 |
现场增价竞租 |
2025年12月25日09时00分(北京时间) |
|
|
方式二 |
公告期满,如只征集到一个符合条件的意向方 |
按起租价与意向方报价孰高原则成交 |
2025年12月25日09时00分(北京时间) |
|
|
方式三 |
公告期满,如没有征集到符合条件的意向方 |
不变更信息公告内容,按照不少于5个工作日为一个周期,延长一个公告期征集意向承租方 |
2026年01月05日09时00分(北京时间) |
|
3、招租面积、竞租底价及方式:
|
高州市中山路112号商场招租项目明细表 |
||||||
|
序号 |
招租标的 |
位置 |
面积 |
月租金底价 |
年租金 (元/年) |
租期(年) |
|
1 |
高州市中山路112号商场 |
高州市中山路112号 |
1949.30 |
130273.00 |
1563276.00 |
5 |
|
合计 |
1949.30 |
|
1563276.00 |
|
||
|
面积为大约数,实际招租面积以现状为准。
|
||||||
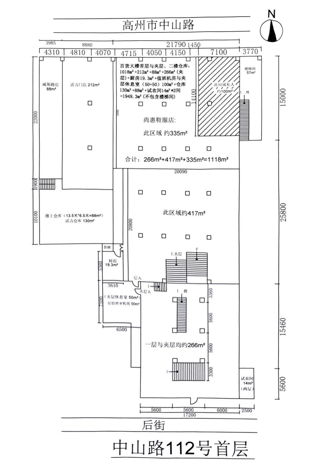
商场平面图如下:
竞租方式:采用明价公开举牌竞价的方式对商场月租金进行竞价,采取“增价式”的方式进行,遵循“价格优先、时间优先、价高者得”的原则,同等价位条件下以竞价主持人确认的应价为准,加价幅度 :每举牌一次的加价幅度为在月租金底价的基础上加1000元/月,在不低于月租金底价基础上按照价高者得的原则确定竞得人。
三、竞租人资格
1、竞租人已登记报名并获取本项目招租文件并具有独立承担民事责任能力企业法人、个体经商户、自然人;
2、竞租人仅限于经营餐饮业、土特产、日用百货业、副食品、成衣、医药器械,但不准经营化学物品、易燃易爆品和政策不允许经营的业务。
3、本项目不接受联合体竞租。
四、竞租报名
竞租人请于2025年12月05日08时30分至2025年12月11日17时30分前(北京时间,节假日除外)到茂名市汇智招标代理有限公司(高州市潘州街道谢村居委会桂圆东路坡耀村三、五小组农民留用地B地块30号(鲲鹏大厦A)6楼)报名并购买招租文件,招租文件售价300元(人民币),售后不退。领购招租文件时需携带的材料:
(1)企业法人(或个体经营)营业执照复印件加盖公章(原件备查);法定代表人(负责人)身份证明书原件及法人身份证复印件加盖公章(原件备查);法人(负责人)授权委托书原件及被授权人身份证复印件加盖公章(如有,原件备查)。
(2)自然人竞租的提供身份证复印件(原件备查)
五、竞租保证金
竞租前(2025年12月25日09时00分前缴交)竞租人必须按招租要求交纳竞租保证金:156327.00元(人民币壹拾伍万陆仟叁佰贰拾柒元整)。
六、竞租文件的递交
1、竞租文件的递交时间:以招租公告具体安排时间为准
2、竞租文件递交截止时间:以招租公告具体安排时间为准
3、递交地点:高州市潘州街道谢村居委会桂圆东路坡耀村三、五小组农民留用地B地块30号(鲲鹏大厦A)6楼
4、递交时间:以招租公告具体安排时间为准
七、联系方式
招租代理机构联系人:冼小姐
电话:0668-6623366
联系地址:高州市潘州街道谢村居委会桂圆东路坡耀村三、五小组农民留用地B地块30号(鲲鹏大厦A)6楼
招租人:高州市商业储运公司
联系人:郭晶
联系电话:18211345704
八、公告期限、发布公告的媒介:
公告期限:自本公告发布之日起5个工作日。
发布公告的媒介:茂名市汇智招标代理有限公司网(http://www.mmhzzb.com)
茂名市汇智招标代理有限公司
日期:2025年12月04日
- 上一篇:高州市2026年度严重精神障碍患者监护责任补偿保险项目 竞争 2025/12/8
- 下一篇:长坡镇银坑村人居环境整治及提升项目(MMHZ-25GX-01 2025/11/29
